Woodridge Avenue, Quinton, Birmingham, B32
Property Summary
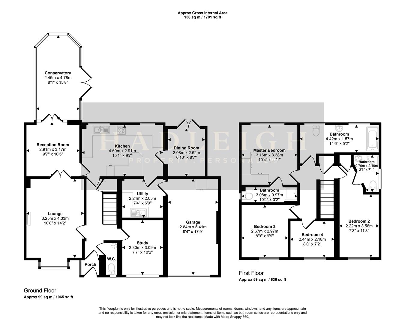
The property comprises of four bedrooms, two of which have en-suites and a family bathroom. Four reception rooms, conservatory and utility room. A large driveway and garage offer ample parking, complete with private rear garden.
Full Details
Entrance Porch/ Hallway
UPVC porch door and front door, central heating radiator and ceiling light point. Access to lounge, guest WC, kitchen and study.
Lounge
Spacious lounge with feature fireplace, bay window to front elevation, central heating radiator and ceiling light point.
Reception Room
Double doors lead through from the lounge, central heating radiator, ceiling light point and French doors leading through to the conservatory.
Conservatory
Spacious conservatory with central heating radiator, ceiling light point and electrics.
Guest WC
Low level flush WC, hand wash basin, obscure glazed window to the front elevation and ceiling light point.
Study
Benefitting from a range of fitted base and wall units, window to front elevation and ceiling light point.
Kitchen
Fitted kitchen benefitting from a range of base and wall units, along with breakfast bar. Integrated oven with extractor hood over, two windows to the rear elevation and ceiling spotlights.
Utility Room
Fitted base and wall units, plumbing for utilities and access internally to the garage.
Dining Room
French doors leading to the garden, central heating radiator and ceiling light point.
Garage
Up and over garage door and housing boiler.
Master Bedroom
Master bedroom benefitting from fitted units, window to rear elevation, central heating radiator and ceiling light point.
En-suite
Walk in shower, partially tiled walls. Low level flush WC, vanity unit, central heating radiator and obscure glazed window.
Bedroom Two
Double bedroom with window to front elevation, central heating radiator and ceiling light point.
En-suite
Walk in shower cubicle, hand wash basin, low level flush WC. Central heating radiator and obscure glazed window to side elevation.
Bedroom Three
Double bedroom with window to front elevation, central heating radiator and ceiling light point.
Bedroom Four
Window to front elevation, ceiling light point and central heating radiator.
Bathroom
Bath with shower attachment, low level flush WC and vanity unit. Two obscure glazed windows to the rear elevation, two radiators and tiled walls.
Garden
Predominantly laid to lawn, with paved patio area. Wall and fenced boundaries, and side gate.
General Information
We have been advised the following information, however we advise for you to confirm this with your legal representative as Hadleigh Estate Agents cannot be held accountable.
Tenure - Freehold
EPC – TBC
Council Tax Band – D















































































