Westfield Road, Edgbaston, Birmingham, B15
Property Summary
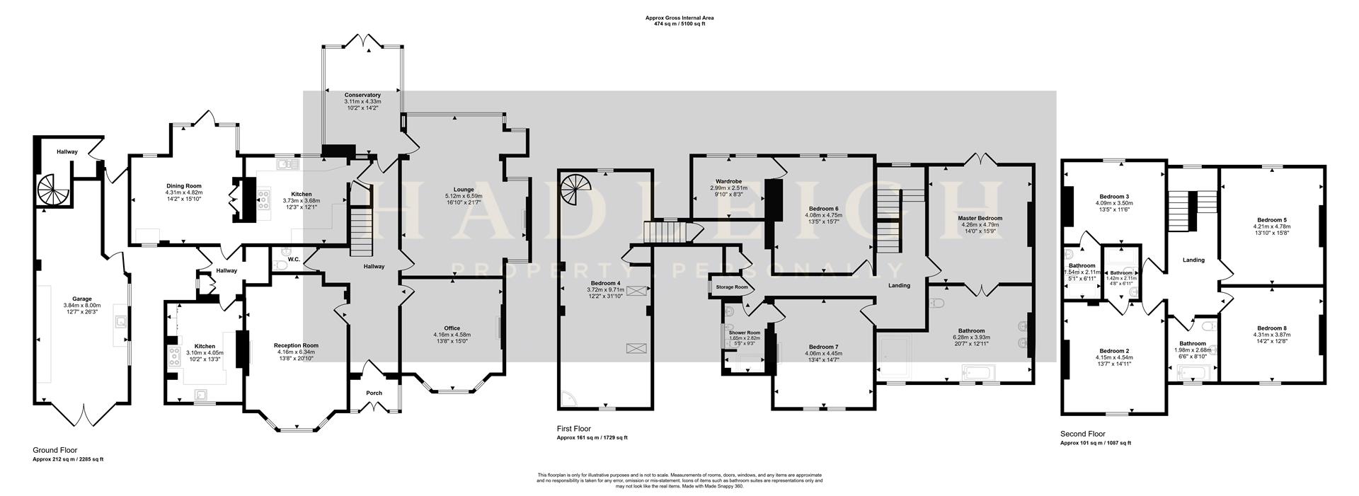
Boasting a large driveway, allowing parking for multiple vehicles. The property is set over three floors this detached home offers multiple reception rooms, two kitchens, spacious garage, conservatory and guest WC. The second floor accommodation offers 3/ 4 bedrooms with the potential for converting into multi purpose rooms, along with shower room. The master bedrooms offers a substantial bathroom. The second floor of the property further benefits from an additional four bedrooms, two complete with ensuite and additional house bathroom. To the side of the property is an extensive garage and to the rear is an extensive and private garden. The property further benefits from having solar panels.
Full Details
Approach
The property is approached through a large driveway with fore garden. Steps lead up to the front door and inner porch, along with garage and courtyard access.
Entrance Hall
The reception hall, with original Oak flooring, leading to the main rooms and to a stunning staircase with exquisite timber detail leading up to the first floor accommodation.
Lounge
Spacious lounge boasting many traditional features, arched inglenook with working log burner. Picture windows to the rear elevation, wall and ceiling lights complete with ceiling Rose and cornices. Two traditional style radiators and access to the conservatory.
Office
Spacious multi purpose room currently being used as a home office, with feature Oak fireplace and bay window to the front elevation. Ceiling light point with Rose and decorative coving. Traditional style radiator and fitted shutters.
Reception Room
Spacious multi purpose room, bay window to the front elevation. Ceiling light point with Rose and decorative coving. Traditional style radiator and fitted shutters.
Dining Room
Having a large bay with windows and door onto the terrace and dual aspect windows. Tiled flooring, radiator and multiple ceiling lights.
Kitchen
Newly fitted kitchen having a range of base and wall units, tiled flooring and window to the front elevation.
Kitchen
Benefitting from an additional kitchen, with feature AGA. A range of base and wall units, tiled flooring and window to the rear elevation.
Conservatory
Spacious conservatory with quarry tiled flooring and double doors leading to the garden.
Guest WC
Low level flush WC, hand wash basin, partially tiled walls, ceiling spotlights and traditional style radiator.
Courtyard/ Garage
Door through leading to courtyard, further accessing garage and outhouses. Access via spiral staircase to bedroom four.
Master Bedroom
Extensive master bedroom boasting double doors externally and double doors to the master bathroom. Carpeted flooring, traditional radiator and ceiling light point. Boasting traditional ceiling rose and coving.
Master Ensuite
Spacious and modern ensuite boasting freestanding bath and additional walk in shower. Fitted vanity unit with double sinks, traditional towel radiator and traditional radiator. Ceiling light point, tiled flooring and opaque sash style windows.
Shower Room
Walk in shower cubicle, concealed low level flush, bidet and sink vanity unit. Partially tiled walls, towel radiator and opaque glazed window. Access via landing and bedroom.
Bedroom Seven
Spacious double bedroom with double sash style windows to the front elevation, carpeted flooring, feature fireplace and radiator. Ceiling light point with rose and coving. Further giving access to shower room.
Bedroom Six/ Wardrobe
Spacious double bedroom with double sash style windows to the rear elevation, carpeted flooring and radiator. Ceiling light point with rose and coving. Further giving access to walk in wardrobe. The wardrobe could allow the opportunity to create a further ensuite.
Coach House/ Bedroom Four
Bedroom four is a further multi purpose room, previously used as a gymnasium. With windows at both ends, two roof lights and a spiral staircase in the corner leading down to the coachhouse/garage. There is a shower cubicle in the corner of the room. Heating is provided by wall mounted electric heaters.
Bedroom Two
Spacious double bedroom boasting sash window to the front elevation, carpeted flooring, ceiling light point and traditional radiator. Further giving access to ensuite.
Ensuite
Modern ensuite with floor to ceiling tiles, walk in mains shower cubicle and floating hand wash basin. Concealed low level flush WC, towel radiator and medicine cabinet.
Bedroom Three
Spacious double bedroom boasting sash window to the rear elevation, carpeted flooring, ceiling light point and traditional radiator. Further giving access to ensuite.
Ensuite
Modern ensuite with floor to ceiling tiles, walk in mains shower cubicle and floating hand wash basin. Concealed low level flush WC, towel radiator and ceiling spotlights.
Bedroom Five
Spacious double bedroom with carpeted flooring, radiator, ceiling light point and sash window to the rear elevation.
Bedroom Eight
Spacious double bedroom with carpeted flooring, radiator, ceiling light point and sash window to the front elevation.
Garden
Extensive and established garden, predominantly laid to lawn. Benefitting from being landscaped to provide formal areas and also south facing. Featuring mature shrubs and trees. Paved terraced area and path leading down the garden. Outside further boasts log store, outside WC and store room.
Additional Information
We have been advised the following information, however we advise for you to confirm this with your legal representative as Hadleigh Estate Agents cannot be held accountable.
Tenure - Freehold
EPC – TBC
Council Tax Band – H











































































































































