West Pathway, Harborne, Birmingham, B17
Property Summary
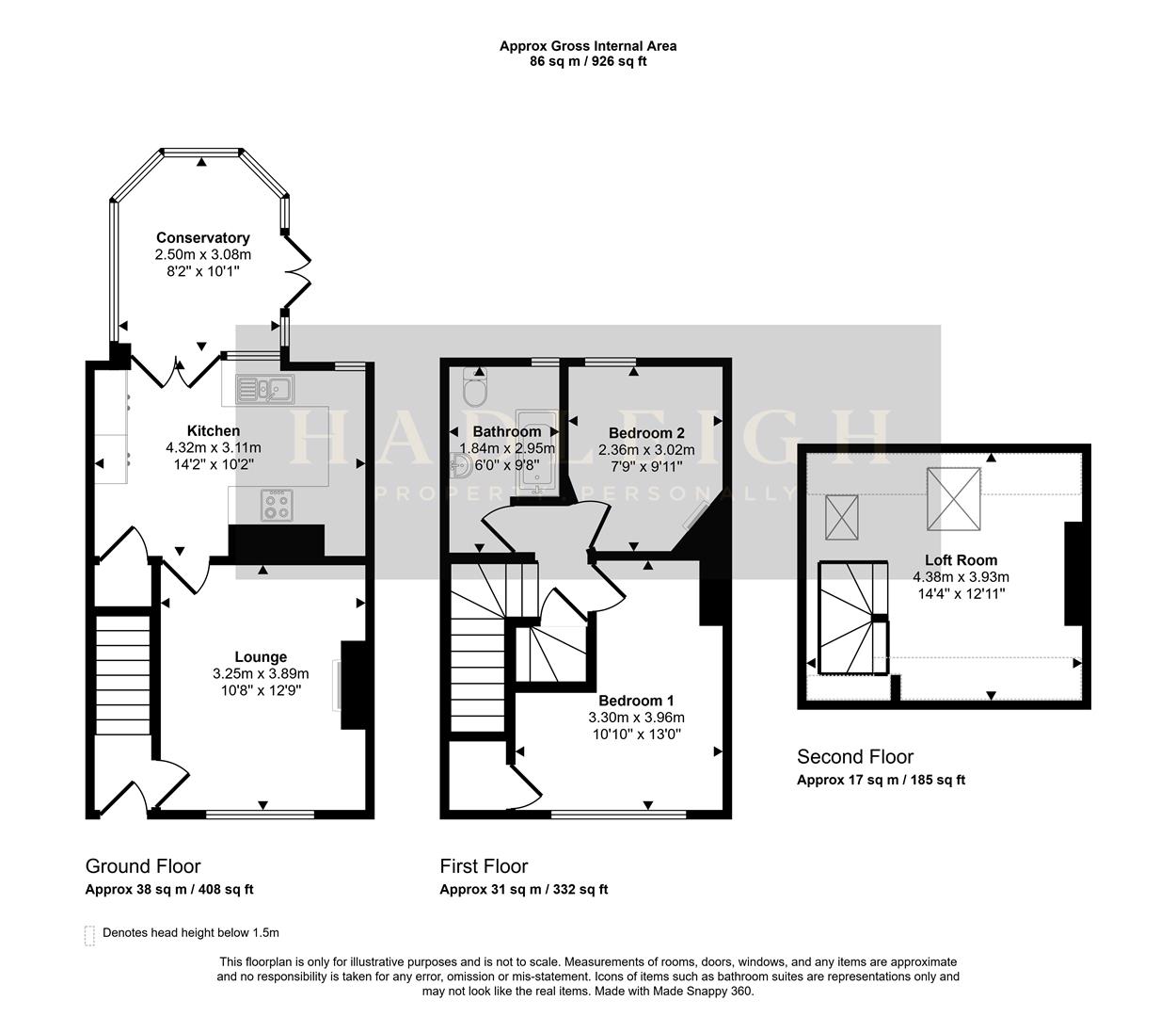
This property is ready to move straight into and comprises, entrance hallway, leading to a spacious lounge with feature fireplace. To the rear is a modern fitted kitchen and the property further benefits from a conservatory, creating extra space for dining.
The first floor offers two good sized bedrooms, a modern family bathroom and stairs to the second floor allowing for an additional room. To the rear of the property is a well maintained private garden.
Full Details
Location
West Pathway is nestled within the Moor Pool Estate, giving easy access into Harborne. Harborne High Street offers an array of bars and restaurants, along with excellent transport links into Birmingham City Centre, nearby Queen Elizabeth Hospital and University of Birmingham. There are also nearby schools, leisure facilities including Harborne Leisure Centre and Edgbaston Priory.
Lounge
Window to front elevation, feature fireplace, central heating radiator and ceiling light point. Further giving access into the kitchen.
Kitchen
Modern fitted kitchen benefitting from a range of base and wall units, including integrated appliances. Ceiling spotlights, central heating radiator and understairs storage. Window to rear elevation and partially glazed double doors lead through to the conservatory.
Conservatory
Spacious conservatory currently being used as a dining room, complete with central heating radiator, electrics and ceiling light point.
Bedroom One
Double bedroom with windows to the front elevation, internal storage cupboard, central heating radiator and ceiling light point.
Bedroom Two
Traditional period fireplace, window to the rear elevation, central heating radiator and ceiling light point.
Bathroom
Tiled bathroom with mains shower over bath, low level flush WC, vanity unit and towel radiator. Opaque window to the rear elevation, ceiling spotlights and medicine cabinet.
Loft Room
Excellent sized room, boasting two sky lights, central heating radiator and ceiling light point.
Garden
Decked patio area, being predominantly laid to lawn.
General Information
We have been advised the following information, however we advise for you to confirm this with your legal representative as Hadleigh Estate Agents cannot be held accountable.
Tenure - Freehold
EPC – D
Council Tax Band – C





















































