Wentworth Road, Harborne, Birmingham, B17
Property Summary
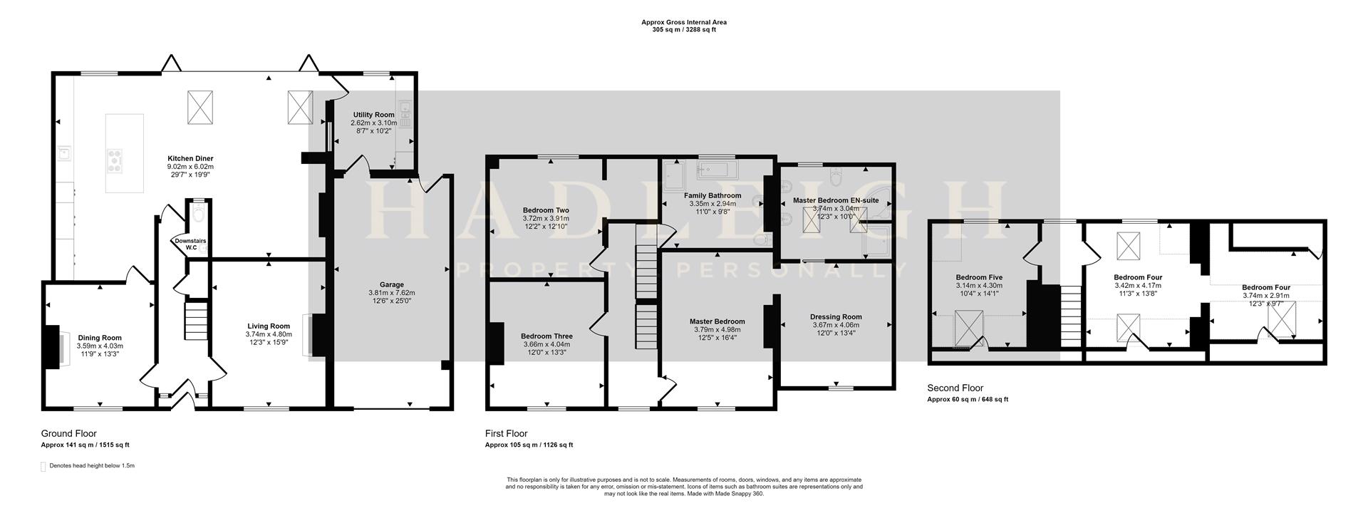
To the ground floor, preserving its original Victorian style with period relevant fireplaces in both the dining room and reception room as well as 32 piece ceiling rose, original wooden shutters and sash windows. To the rear is an extended kitchen diner with modern integrated appliances and bifold doors leading to a large private garden with patio area, perfect for family entertaining.
To the first floor are three large double bedrooms and family bathroom. The master bedroom includes a large en-suite bathroom and large walk in wardrobe with the second bedroom similarly comprising of an en-suite. To the second floor is two further large double bedrooms with beautiful views over the garden to the rear.
Full Details
Location
Ideally located within walking distance to Harborne High Street close to all local amenities and within easy reach of the Queen Elizabeth Medical Complex and University of Birmingham. In the catchment area for Harborne Primary School. Public transport is also nearby with a range of buses travelling into the City Centre and extensive motorway networks making commuting out of the City easy. The surrounding area offers excellent state and independent schools for boys and girls of all ages, including Harborne Junior & Infants school, The Blue Coat School and Edgbaston High School for Girls. Furthermore recreational amenities include Edgbaston & Harborne Golf Clubs, Edgbaston Priory Lawn Tennis & Squash Club, sailing at Edgbaston Reservoir, the Warwickshire County Cricket Ground, Edgbaston Botanical Gardens and Archery Club.
Entrance Hall
Herringbone wood flooring, ceiling spotlight points, radiator and original stained glass door to front.
Living Rooom
Wood flooring, sash window to front elevation, ceiling light pendant, original fireplace with tiling, fitted shelving and radiator.
Dining room
Wood flooring, sash window to front elevation, ceiling light pendant, original fireplace with tiling and radiator.
Kitchen
Modern open plan kitchen area with underfloor heating throughout with built in Miele appliances such as: two ovens, microwave oven, coffee machine, double fridge freezer and five burner gas hob which will all be included with the sale. Not to mention the sky lights and bifolding doors into the garden offering a vast amount of natural light. Porcelanosa tiles throughout the kitchen creating a beautiful feature wall when entering the kitchen through the dining room.
Lounge
Lounge area adjoining to the kitchen creates a welcoming sitting area and perfect for hosting. The kitchen/ lounge area benefits from two sections of underfloor heating, LED lights throughout which can be switched from warm white and bright white, as well as apple play speakers in several rooms which can be used through your phone in each different room. Porcelanosa tiles throughout creating an exceptional finish to the open plan room.
Utility room
Placed between the garage and kitchen area, makes for a great space which can be utilised for cleaning and storage.
Garage
Large garage with space for a vehicle and storage benefitting from a silverlox garage door with state of the art security systems. The garage door can also be used as a single entrance door or a canopy door for vehicles.
Downstairs W/C
Convenient downstairs W/C utilising the under stairs space.
Cellar
Cellar storage space currently being used to store wine bottles.
Master Bedroom
Large, modern and light master bedroom compromises of a generous dressing room space and sizable en-suite. En-suite benefits from skylights which electronically open and jacuzzi bath. Throughout the master bedroom space there are apple play speakers and LED lighting
Master Bedroom EN-suite
Laminate wood flooring, tiled walls, obscure sash window to rear, skylight, ceiling spotlight points, heated towel rail, walk in shower cubicle, corner bath, low flush W.C and two hand wash basins.
Bedroom Two
Spacious and stylish second double bedroom with En-suite, LED lighting throughout whilst facing the rear garden.
Bedroom Two EN-Suite
Tiled flooring, tiled walls, sash window to front elevation with wooden shutters, ceiling spotlight points, shower cubicle, low flush W.C and hand wash basin.
Bedroom Three
Third double bedroom offers a sizeable living space, facing the front of the property with natural light being supplied by the sash style windows.
Family Bathroom
Tiled flooring, tiled walls, obscure sash window to rear, ceiling spotlight points, heated towel rail, walk in shower cubicle, freestanding bath, low flush W.C and hand wash basin.
Bedroom Four
Into the loft conversion which has a Dorma extension on the rear, offers a vast amount of living area and natural light with a bedroom and small seating area.
Bedroom Five
The fifth and final double bedroom offers a comfortable living space and a great view of the rear garden with front windows offering a picturesque view of Harborne.









































































