Park Hill Road, Harborne, Birmingham, B17
Property Summary
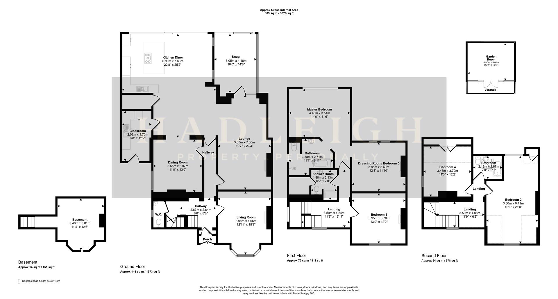
This stunning semi-detached family home fully merits an internal inspection. Benefitting from a large driveway for three cars and electric gates, vestibule porch, reception hall with original Minton tiles and guest cloakroom. The hallway further gives access to the basement, ideal for storage or potential to convert. To the front is a spacious sitting room with feature fireplace, to the rear is a fantastic open plan dining area, lounge and kitchen, boasting full width and heating bi-fold doors. Further benefitting downstairs is a convenient utility room and additional study.
The first floor boasts master bedroom with en-suite bathroom with walk in shower and freestanding bath. An additional bedroom is currently being used as a spacious dressing room, another double bedroom and shower room. The second floor offers two further double bedrooms and bathroom. To the rear of the property is an extensive private garden, with paved patio area and further benefitting from a large insulated garden room currently being used as a gym, complete with lighting and electrics.
Full Details
Location
PARK HILL ROAD is a highly regarded and sought after location within close proximity to Harborne High Street. The High Street offers an array of award winning restaurants, bars and local shops including Waitrose. In addition there are several schools for children of all ages including the well known Harborne Primary School. Excellent transport links are on offer into Birmingham City Centre, along with nearby Queen Elizabeth Hospital and University of Birmingham.
Porch/ Hallway
With hardwood front door, partially glazed internal door and ceiling light point. Minton tiled flooring, traditional column radiator and stairs to first floor accommodation.
Guest WC
Traditional high level WC, corner hand wash basin, sash window to side elevation and tiled flooring. Ceiling light point and column radiator.
Living Room
Having original feature open fireplace with painted mantel, fitted shelving and central heating radiator. Cornice, ceiling light point and original sash style bay window to front with bespoke fitted shutters.
Dining Room
Being open style with the kitchen diner and lounge, the dining area offers windows to the side elevation, complete with bespoke shutters. Parquet flooring, ceiling light point, Sonos speakers and underfloor heating.
Lounge
Having multi fuelled stove inset in feature fireplace with hearth beneath, fitted shelving, central heating radiator, cornice and ceiling light point with ceiling rose.
Kitchen Diner
Benefitting from part Parquet flooring and part tiled flooring along with underfloor heating, sliding patio doors cover the height and width of the rear. Fitted 'Neptune' kitchen with a range of base and wall units, including integrated 'Neff' appliances, space for fridge freezer and double Belfast sink. Substantial kitchen island, complete with Neff hob, large undercounter wine fridge and hidden smoke machine. The kitchen further boasts Sonos sound system, also giving access to walk in pantry and further boasting three skylights.
Snug
Being the most recent addition to the property, this convenient room boasts ample natural light flooding in. Feature wall, with internal glazed windows through to the kitchen, sliding patio door, wrap around skylights and ceiling lantern with automated electric light well and Sonos sound system.
Basement
Steps down from hallway lead to a spacious basement making for excellent storage, also allowing potential to fully convert.
Cloakroom
Having sink unit and drainer with a range of base and wall units, space for fridge/freezer, plumbing for automatic washing machine, tumble dryer, tiled floor, door to front and underfloor heating.
First Floor Landing
Boasting stained glass leaded light window to side elevation, carpeted flooring and ceiling spotlights. Sash window to front elevation, central heating radiator and stairs to second floor.
Master Bedroom
Spacious master bedroom boasting sash windows to the rear elevation, concealed recessed lighting. Carpeted flooring, Sonos speakers and access to master ensuite.
En-suite Bathroom
Modern bathroom suite boasting freestanding bath, walk in shower with additional shower attachment. Low level flush WC, vanity unit and mirrored wall. Window to side elevation, tiled flooring and partially tiled walls.
Dressing Room/ Bedroom 5
Dressing room allowing to be used as an additional bedroom, having fitted wardrobes with inset drawers. Central heating radiator, traditional feature fireplace, cornice and sash window to rear elevation.
Bedroom 3
Feature fireplace with painted mantel, cornice and ceiling light point. Central heating radiator, Sonos speakers and two sash style windows to front elevation.
Shower Room
Walk in shower cubicle, low level WC, wash hand basin and boiler cupboard with pressurised system.
Second Floor Landing
A further staircase leads to the second floor landing with central heating radiator, ceiling spotlights and stained glass window to front elevation.
Bedroom 2
Spacious bedroom boasting under eaves storage, central heating radiator and dual aspect windows to the front and rear elevation. Carpeted flooring and ceiling light point.
Bedroom 4
Double bedroom benefitting from under eaves storage, sash window to side elevation and ceiling light point. Carpeted flooring and central heating radiator.
Bathroom
Bath with shower over and additional shower head attachment, low level flush WC and hand wash basin. Tiled flooring and partially tiled walls, towel radiator and skylight.
Garden
Extensive private garden, predominantly laid to lawn. Spacious patio area, landscaped border and a mix of brick/ fenced boundaries. Boasting large insulated garden room, complete with electrics and lighting, making for a perfect home office, study or gym.

































































































































