Muscott Grove, Harborne, Birmingham, B17
Property Summary
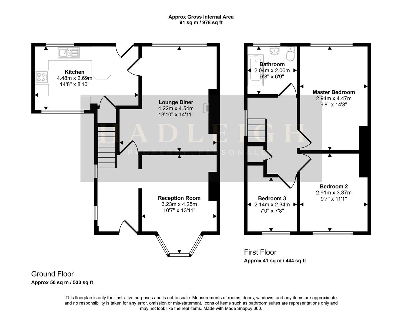
The property comprises of fore garden and driveway, allowing for potential to expand the parking available. Entrance hallway leads through to the front reception room and rear lounge diner. Fitted kitchen and spacious rear garden. The first floor offers three spacious bedrooms, family bathroom and loft access.
Full Details
Entrance Hallway
UPVC obscure glazed front door, two windows to the side elevation and central heating radiator. Ceiling light point, storage cupboards and stairs to first floor.
Reception Room
Bay window to the front elevation, electric fire, ceiling light point and vertical central heating radiator.
Lounge Diner
Featured brick wall, window to the rear elevation and central heating radiator. Internal glazed door from the hallway, access to the kitchen and ceiling light point.
Kitchen Diner
Spacious kitchen diner with windows to the front and rear elevation, a range of base and wall units with plumbing for utilities. Access to rear garden, along with access to the front. Ceiling light point and housing boiler.
Landing
Window to the side elevation, loft access and airing cupboard.
Master Bedroom
Window to rear elevation, carpeted flooring, central heating radiator and ceiling light point.
Bedroom Two
Window to front elevation, carpeted flooring, central heating radiator and ceiling light point.
Bedroom Three
Window to front elevation, carpeted flooring, central heating radiator and ceiling light point.
Bathroom
Bath with shower over, vanity unit and low level flush WC with hidden cistern. Obscure glazed window to the rear elevation, central heating radiator, ceiling light point and partially tiled walls.
Garden
Large private garden with decked patio area, predominantly laid to lawn and garden shed.
General Information
We have been advised the following information, however we advise for you to confirm this with your legal representative as Hadleigh Estate Agents cannot be held accountable.
Tenure - Freehold
EPC - D
Council Tax Band - C



























































