Lordswood Road, Harborne, Birmingham, B17
Property Summary
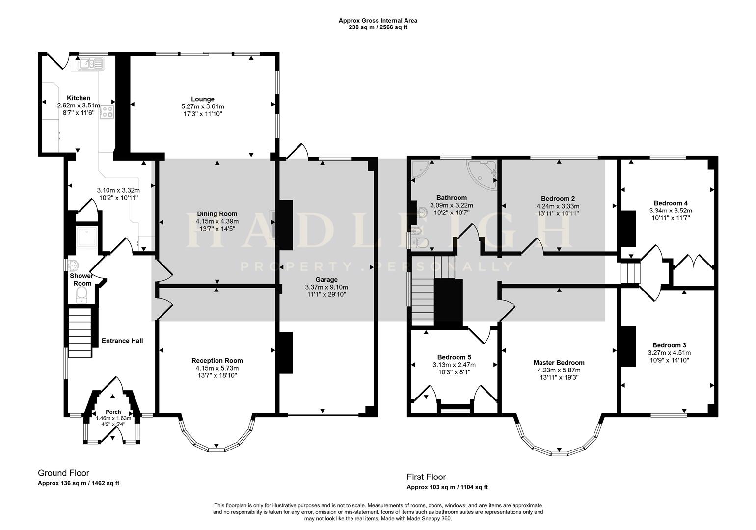
The property boasts in and out driveway, spacious entrance hallway, front reception room and rear extended lounge. Fitted kitchen diner, shower room and rear access to a large garage. The first floor boasts five bedrooms and family bathroom, complete with separate bath and shower.
Full Details
Location
Lordswood Road is conveniently located for easy access into Harborne High Street, offering an array of bars, restaurants and local shops including Waitrose and Marks and Spencer's. Excellent transport links are on offer into Birmingham City Centre, nearby Queen Elizabeth Hospital and University of Birmingham. Local leisure facilities include Harborne Golf Club, Harborne Leisure Centre and nearby Edgbaston Priory Tennis Club. A number of independent and state schools are close at hand.
Entrance Hallway
UPVC double glazed porch and stained glass wooden front door. Two stained glass windows to the front elevation, radiator, ceiling light point and stairs to first floor accommodation.
Reception Room
Spacious multi purpose reception room, allowing for a further living room or dining area. Compete with bay window to the front elevation, radiator, electric fire, ceiling light point and carpeted flooring.
Lounge/ Dining Room
Rear extended lounge and dining area, complete with sliding patio doors to the garden. Feature fireplace, ceiling light points and a number of wall lights. Three radiators and carpeted flooring.
Kitchen
Fitted kitchen with a range of base and wall units, fitted oven, hob with extractor over and stainless steel sink. Plumbing for dishwasher and breakfast bar. Tiled flooring and partially tiled splashbacks, opaque glazed door and window to the rear elevation. Radiator and ceiling light point.
Shower Room
Partially tiled shower room, low level flush WC, hand wash basin and walk in shower cubicle. Opaque glazed window to the side elevation, ceiling light point and shaving point.
Landing
Spacious landing benefitting from window to the side elevation, loft hatch and carpeted flooring.
Master Bedroom
Extensive master bedroom boasting bay window to the front elevation, a range of fitted wardrobes and cabinets. Radiator, ceiling light point and carpeted flooring.
Bedroom Two
Double bedroom benefitting from a range of fitted wardrobes and drawers, window to the rear elevation and radiator. Ceiling light point and carpeted flooring.
Bedroom Three
A further double bedroom, offering window to the front elevation, ceiling light point and radiator.
Bedroom Four
Double bedroom with built in storage cupboard, window to front elevation, carpeted flooring, ceiling light point and radiator.
Bedroom Five
Boasting a fifth bedroom, complete with two built in storage cupboards, radiator, window to the front elevation and ceiling light point.
Bathroom
Modern family bathroom boasting corner jacuzzi bath, separate shower cubicle, low level flush WC, bidet and hand wash basin. Radiator and traditional towel radiator, floor to ceiling tiles, window to rear elevation and ceiling spotlights.
Garage
Spacious garage running the depth of the property, complete with up and over electric garage door, rear garden access and lighting.
Garden
Large private rear garden, predominantly laid to lawn with extensive patio area and further patio area to the rear.
General Information
We have been advised the following information, however we advise for you to confirm this with your legal representative as Hadleigh Estate Agents cannot be held accountable.
Tenure - Freehold
EPC - TBC
Council Tax Band – G















































































