High Brow, Harborne, Birmingham, B17
Property Summary
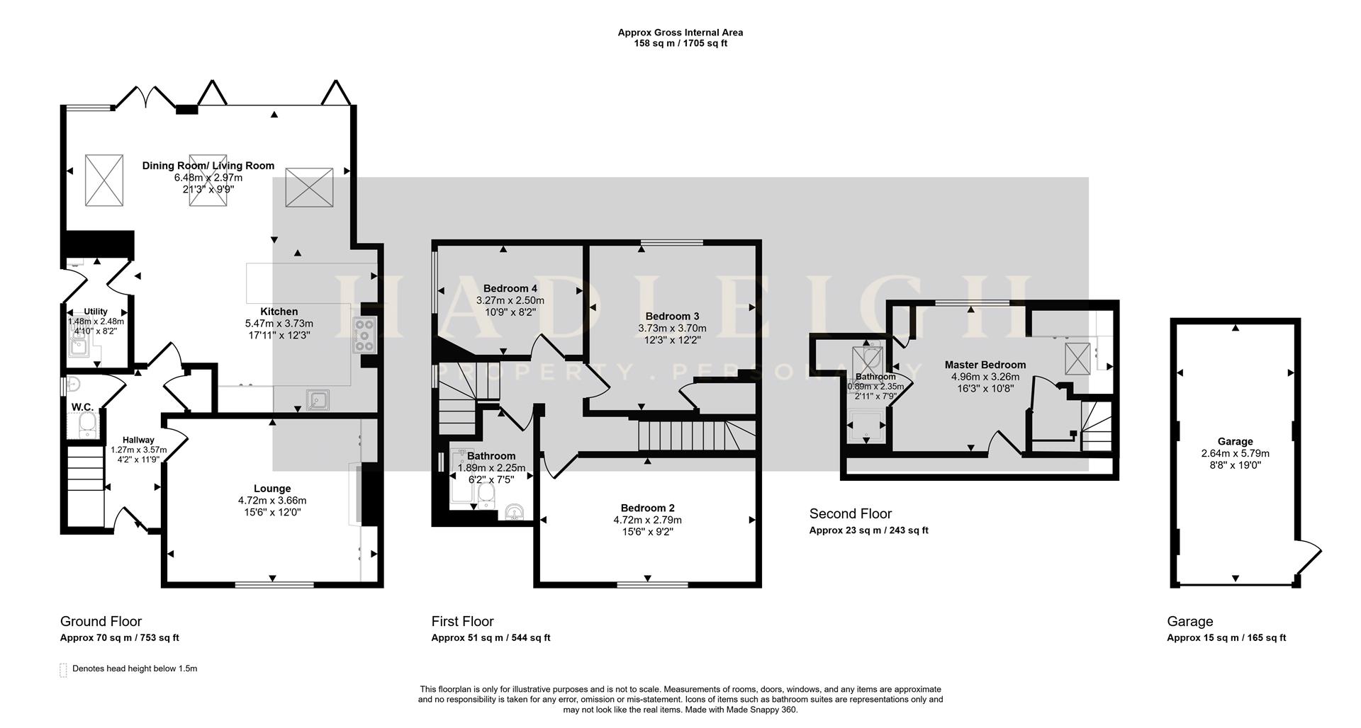
This property needs to be seen to be appreciated, benefitting from a large driveway and garage. To the front of the property is a beautiful fore garden and in brief, the rest of this home comprises. Entrance hallway, with guest WC and storage. To the front of the property is a good sized lounge, to the rear is an extended kitchen diner and living area. Boasting sky lights, modern fitted kitchen and bi-fold doors, along with underfloor wet heating. Completing downstairs is a utility room.
The first floor boasts three good sized bedrooms and modern family bathroom with underfloor heating, whilst giving access to the second floor accommodation offering the master bedroom, and modern ensuite. To the rear is a large private garden, side access to the garage and patio area.
Full Details
Location
High Brow is a central location within the Moor Pool Estate which is highly desirable and sought after. The property is within very close proximity to Harborne High Street with its fabulous array of bars, boutiques, coffee shops and eateries. The property is positioned perfectly for outstanding schools most notably Harborne Primary, Chad Vale Primary School and the Blue Coat School, whilst Medical professionals and academics will love the proximity to Queen Elizabeth Medical Complex and The University of Birmingham. For those who rely on the motorway networks they have the options of the M6, M40 and M42 via M5 around four miles away. Other fantastic points of interest within the local area include Birmingham Botanical Gardens and Edgbaston Priory Club. With the NIA, Symphony Hall and theatres in Birmingham City Centre also easily accessible.
Hallway
Welcoming entrance hallway, complete with understairs WC and internal storage cupboard. Wooden banister, ceiling spotlights and obscure glazed front door.
Lounge
Spacious lounge offering windows to front elevation, bespoke units within the alcoves and gas fireplace. Ceiling light point and gas central heating radiator.
Kitchen/ Diner/ Living Room
Modern fitted kitchen with flush base units, wall units, honed black granite worktops and integrated appliances. Gas hob and partially tiled surround. Benefitting from a substantial rear extension, opening up the room to allow for a perfect dining space and living area. Boasting three skylights, bi-fold doors and further French doors leading to the garden. Gas central heating radiator, ceiling spotlights and further ceiling lights over the breakfast bar. Completed with underfloor heating.
Utility
Ample space allowing for base and wall units, sink and drainer unit along with plumbing for washing machine, tumble dryer and gas central heating radiator. Ceiling spotlights and partially glazed patio door.
Guest WC
Low level flush WC, hand wash basin, towel radiator and window to side elevation.
Landing
Carpeted flooring, window to side elevation and ceiling light points. Stairs to second floor accommodation.
Bedroom 2
Large double bedroom, offering windows to front elevation, gas central heating radiator and ceiling light point.
Bedroom 3
Benefitting from an additional double bedroom, overlooking the rear of the property with windows to the rear elevation, gas central heating radiator and ceiling light point.
Bedroom 4
A further double bedroom, window to side elevation, gas central heating radiator and ceiling light point.
Bathroom
Modern family bathroom, with mains shower over bath. Low level flush WC, vanity unit and light up mirror. Partially tiled walls, window to side elevation, ceiling spotlight and electric underfloor heating.
Master Bedroom
Master suite, benefitting from windows to rear elevation and additional skylight. Ample storage within the eaves and further boasting a 'reading nook'. Gas central heating radiator, ceiling spotlights and access to ensuite.
Ensuite
Walk in mains shower cubicle, vanity unit and low level flush WC. Towel radiator, ceiling skylight, spotlights and light up mirror.
Garden
Large private garden, offering slabbed patio area, predominantly laid to lawn. Mature shrubs and hedgerow boundaries, complete with rear vegetable patch.
Garage
Roller style garage door, side door leading to garden and storage within the roof space. Benefitting from electrics and lighting.



















































































