Harborne Road, Edgbaston, Birmingham, B15
Property Summary
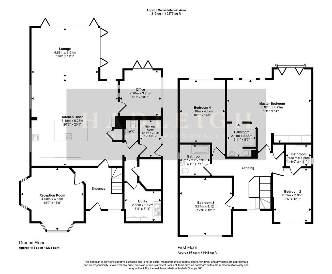
Throughout the property has been modernised to a high standard, with high end appliances to state of the art lighting. In brief the property comprises, driveway parking for a number of vehicles, welcoming entrance hallway and front lounge. An exceptional open plan kitchen diner and lounge area are further benefitted by home office, utility room and boot rooms. Luxurious bi-fold doors open out to the garden and patio area. The first floor boasts four double bedrooms, the master bedroom benefits from Juliet balcony and ensuite. Along with a spacious landing, additional ensuite and family bathroom.
Full Details
Entrance Hall
Floating staircase to first floor accommodation with down lighting, glass balustrade, LED lighting and tiled flooring. Underfloor heating, handmade front door and double glazed window to front elevation.
Reception Room
Spacious lounge benefitting from dual aspect double glazed bay windows, feature media wall. Bespoke tray ceiling with recessed track lighting, underfloor heating and carpet.
Kitchen Diner
Modern open plan kitchen diner, boasting a bespoke quartz island, complete with undercounter storage and breakfast bar. Feature LED lighting set within the designer ceiling, including sound system. Built in high end appliances, including wine fridge, fridge freezer and oven. Tiled flooring offering underfloor heating, integrated dishwasher and inset sink with boiling water tap.
Lounge
Feature skylight, recessed downlights and LED lighting. Double glazed windows to the side elevation, tiled underfloor heating, built in sound system and bespoke open corner bi-fold doors.
Office
Aluminium bi-fold doors leading to the patio and window to the side elevation. Walnut feature wall with living effect wall feature, underfloor heating and Cat Five network. Two floor to ceiling intelligent windows offering two options of frosted or clear.
Guest WC
Low level flush WC, hand wash basin, ceiling spotlights and underfloor heating.
Utility Room
Plumbing for appliances, wall and ceiling LED lighting, a range of base and wall units. Towel radiator, sink and drainer unit along with tiled flooring.
Storage Room
UPVC door and window to the side elevation, tiled underfloor heating and ceiling spotlights.
Landing
Spacious and open landing, with glass balustrade, double glazed window to the front elevation. Wall and ceiling LED lighting and central heating radiator.
Master Bedroom
An extensive master suite, boasting three windows to the rear elevation, bi-fold Juliet balcony doors and tall ceiling. Fitted wardrobes, floating beside tables, wall and ceiling LED lighting and feature ceiling light point.
Master En-suite
Modern bathroom with walk in mains shower and additional attachment, low level flush WC, vanity unit and LED backlit mirror. Tiled walls and flooring, along with recessed LED lighting, central heating radiator, further benefitting from floor to ceiling glazed window.
Bedroom Two
Double bedroom boasting access to ensuite, double glazed window to front elevation and carpeted flooring. Feature bedroom wall, ceiling spotlights and central heating radiator.
En-suite
Fully tiled ensuite shower room with window to side elevation. Walk in mains shower with additional attachment, low level flush WC, hand wash basin and radiator.
Bedroom Three
Spacious double bedroom boasting fitted wardrobe, double glazed window to front elevation, carpeted flooring and central heating radiator. Recessed downlights and ceiling light points.
Bedroom Four
Spacious double bedroom with window to the rear elevation, carpeted flooring, ceiling light point and central heating radiator.
Bathroom
Family bathroom offering shower over bath, low level flush WC and hand wash basin. Window to the side elevation, LED ceiling lighting, central heating radiator, tiled flooring and partially tiled wall.
Garden Room
A fantastic multi purpose garden room, benefitting from LED lighting and power sockets. Bi-fold doors open to the garden, further allowing the room to be used as storage, study or home gym.
Garden
Extensive garden, laid to lawn and boasting significant patio area. Wrap around tiled patio, steps down to additional seating area and above ground pool. To the rear of the garden is an extensive garden room and storage area.
Additional Information
We have been advised the following information, however we advise for you to confirm this with your legal representative as Hadleigh Estate Agents cannot be held accountable.
Tenure - Freehold
EPC - C
Council Tax Band - F





























































































































