Earls Court Road, Harborne, Birmingham, B17
Property Summary
Being conveniently located for easy access into Harborne High Street, offering an array of bars, restaurants and and fantastic leisure facilities. The property also sits within catchment area for a number of primary and secondary schools.
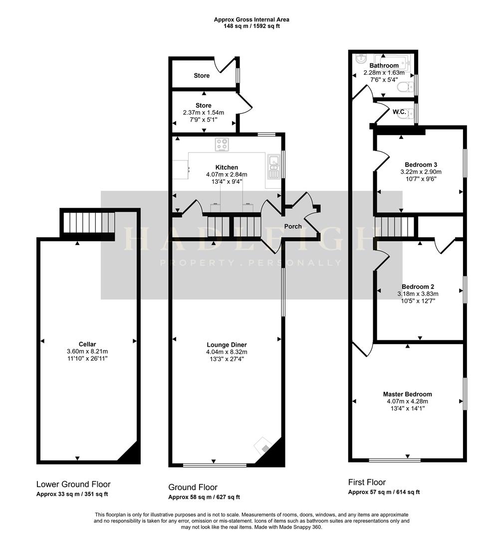
In brief the property comprises of spacious through lounge and diner, fitted kitchen and cellar. The first floor offers three bedrooms, family bathroom and WC. To the rear is a private garden and two outdoor storehouses.
Full Details
Entrance Porch/ Hallway
Entrance porch with UPVC partially glazed front door, along with UPVC door giving access to the rear garden. Ceiling light point and giving access to the lounge diner and kitchen.
Lounge Diner
Extensive lounge and dining area boasting feature log burner, dual aspect windows to the side and front elevation. Central heating radiators and ceiling light points.
Kitchen
Fitted kitchen with a range of base and wall units including integrated oven, dishwasher and plumbing for washing machine. Convenient breakfast bar, access to cellar and housing boiler. Window to front elevation and ceiling light point.
Cellar
Extensive cellar making for fantastic storage and offering potential to convert.
Landing
Giving access to all first floor rooms, ceiling light points, central heating radiator and loft access.
Master Bedroom
Spacious master bedroom boasting dual aspect windows to the front and side elevation, ceiling light point and central heating radiator.
Bedroom 2
Double bedroom with windows to the front elevation, internal storage cupboard, central heating radiator and ceiling light point.
Bedroom 3
Boasting a third double bedroom with window to front elevation, central heating radiator and ceiling light point.
Bathroom
Partially tiled bathroom suite comprising bath with shower over, low level flush WC, hand wash basin and towel radiator. Opaque window to the front elevation and ceiling light point.
WC
Low level flush WC, opaque window to the front elevation and ceiling light point.
Garden
Low maintenance private garden, offering two outhouses, block paved patio area and gravelled seating area.
General Information
We have been advised the following information, however we advise for you to confirm this with your legal representative as Hadleigh Estate Agents cannot be held accountable.
Tenure - Freehold
EPC - D
Council Tax Band - D

































































