Clent Road, Oldbury, B68
Property Summary
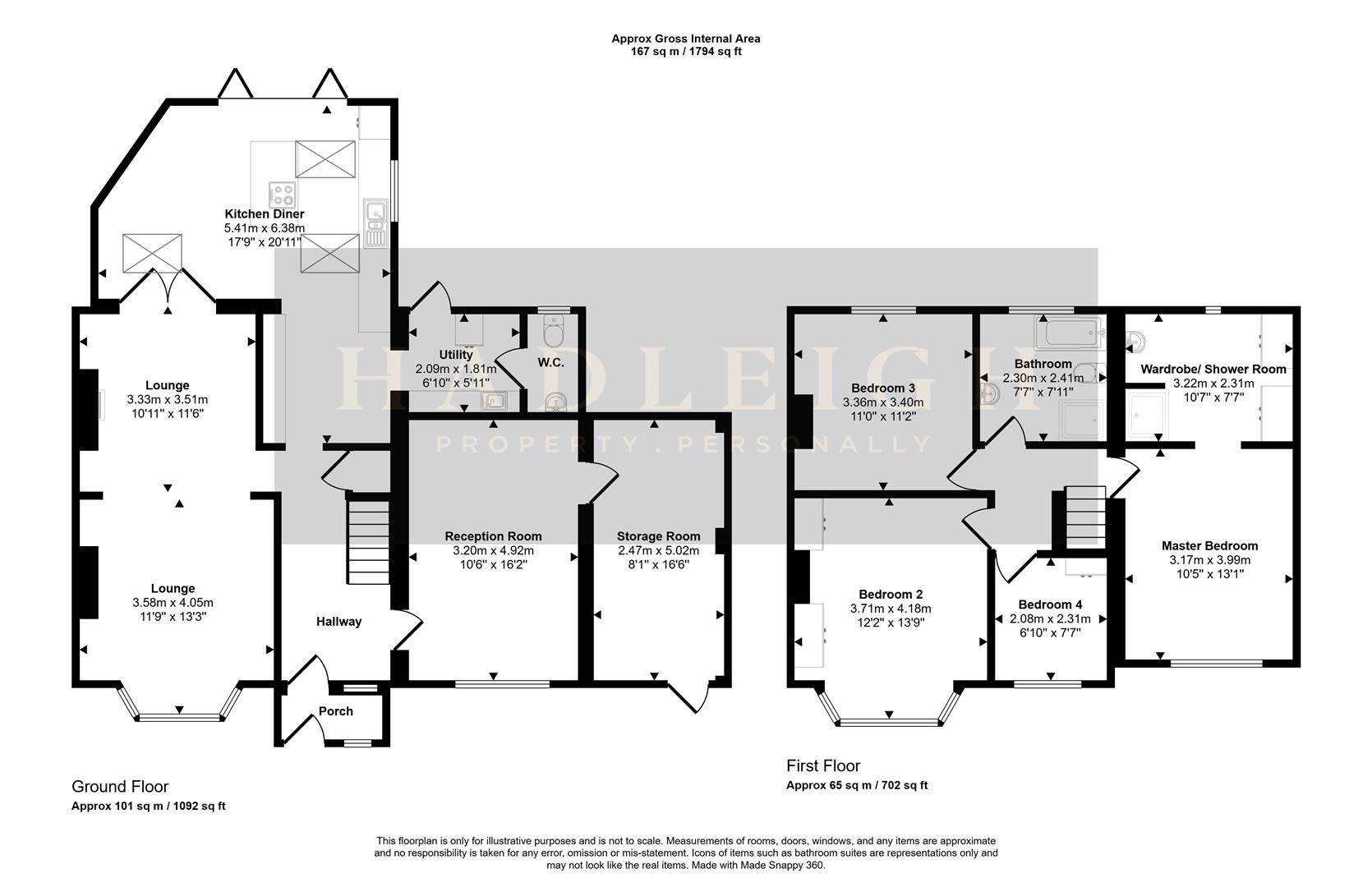
A spacious entrance hall that leads to a generous lounge offering ample space whilst the adjacent dining area offers further accommodation. A stunning kitchen/diner featuring a sleek, modern finish and plenty of storage. A separate utility room and guest WC. Further completing downstairs is an additional reception room, currently being used as a cinema room and giving access to storage.
Upstairs, the master bedroom boasts a stylish ensuite shower and wardrobe, whilst a modern family bathroom serves the remaining three bedrooms. To the rear the garden features rear decking area, low maintenance synthetic lawn and the front of the property benefits from a large driveway with space for multiple vehicles.
Full Details
Location
Clent Road is conveniently located for all amenities, and nearby schools. Excellent transport links are on offer into Birmingham City Centre and surrounding areas, along with motorway networks being close at hand.
Porch/ Hallway
Spacious entrance porch with obscure glazed front door, and window to front elevation. Ceiling spotlights and wall light, along with internal stained glass window. The modern hallway offers access to downstairs accommodation, further benefitting from understairs storage and stairs to first floor.
Lounge
Modern through lounge with bay window to front elevation, ceiling light points and gas central heating radiator. Allowing for a modern finish, and giving ample space to create a formal dining area.
Reception Room
Currently being used as a cinema room, this fantastic reception rooms offers further living accommodation, downlights and radiator. Double glazed window to the front elevation, and access to internal storage/ garage room.
Kitchen Diner
Boasting ample base units and integrated appliances the kitchen diner further benefits from kitchen island, complete with breakfast bar. Ceiling light points and spotlights, skylights offer ample light to flood the room and double doors give access to the lounge. Window to the side elevation and bifold doors lead to the garden.
Utility Room
Ideal utility room, offering plumbing for utilities, further storage, sink and rear door access.
Guest WC
Low level flush WC, floating hand wash basin and ceiling light point, along with obscure glazed window to the rear elevation.
Landing
Landing space benefitting from open bannister and pull down loft hatch.
Master Bedroom
Bright and spacious master bedroom, boasting walk in wardrobe and dressing area, complete with shower cubicle. Stylish vanity unit and dual aspect windows to the front and rear elevation.
Bedroom Two
Boasting a further spacious bedroom, benefitting from bay window to the front elevation and fitted wardrobes. Ceiling downlighters and central heating radiator.
Bedroom Three
An additional double bedroom, complete with window to rear elevation, ceiling light point and central heating radiator.
Bedroom Four
Benefitting from a fourth bedroom, with window to the front elevation, ceiling light point and central heating radiator.
Bathroom
Modern house bathroom, complete with separate bath and walk in shower cubicle. Low level flush WC, vanity unit and towel radiator. Ceiling spotlights, obscure glazed window to the rear elevation and storage cupboard.
Garden
Benefitting from being low maintenance, the rear garden offers decked seating area and artificial lawn.





















































































