Clarence Road, Harborne, Birmingham, B17
Property Summary
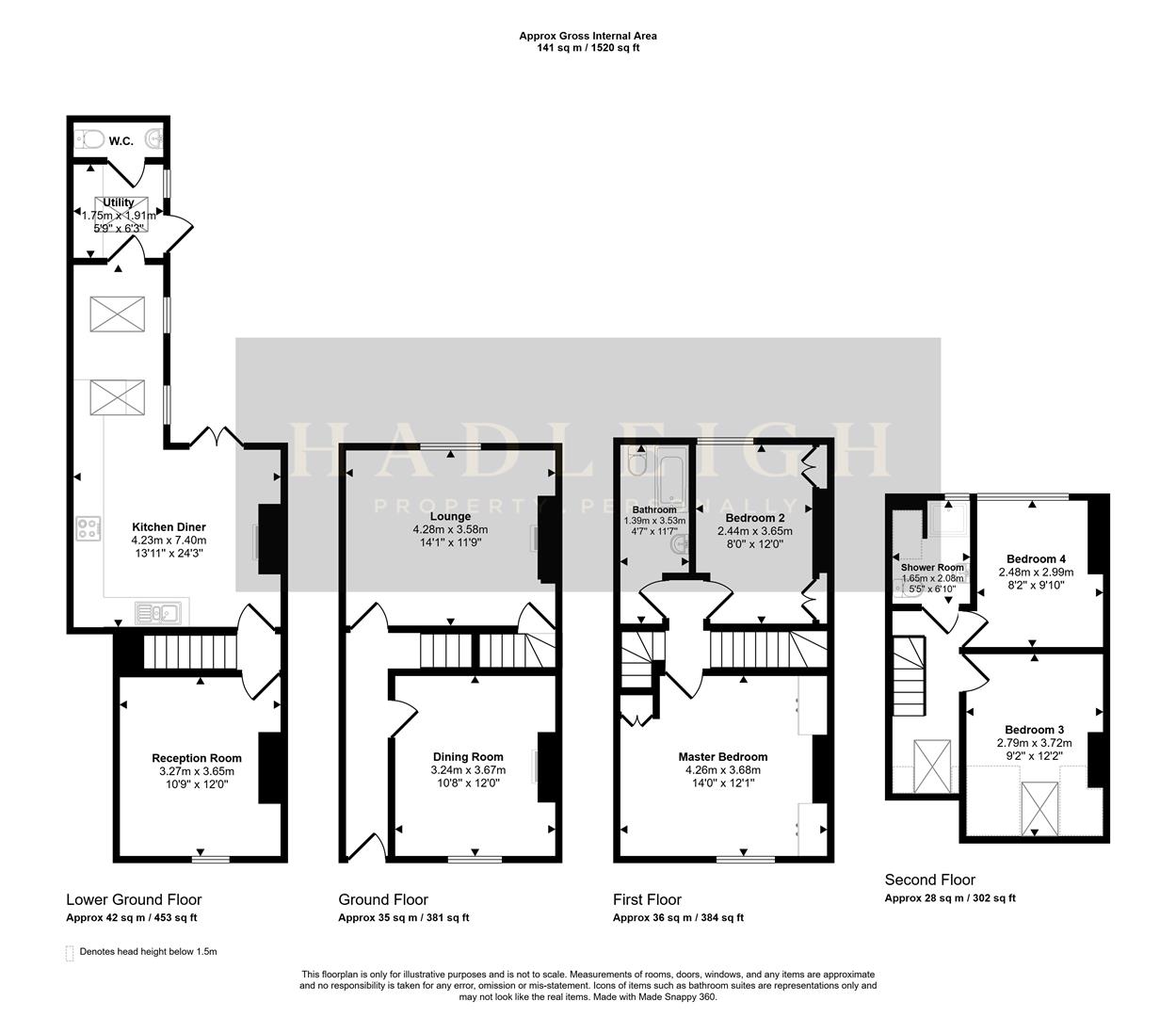
The property comprises, fore garden, entrance hallway and two spacious reception rooms on the ground floor. The lower ground offers a further reception room, fitted kitchen and dining area with downstairs WC and utility room. The first floor boasts two double bedrooms and spacious family bathroom. Situated on the second floor are an additional two double bedrooms and shower room. This house further boasts a good size rear garden.
Full Details
Location
Clarence Road is conveniently located within walking distance to Harborne High Street, offering an array of bars, restaurants and local supermarkets, including Waitrose and Marks and Spencers Foodhall. Excellent transport links are on offer to Birmingham City Centre, along with nearby Queen Elizabeth Hospital and University of Birmingham. Local leisure facilities included Harborne Leisure Centre, Harborne Golf Club and Edgbaston Priory. The property further benefits from being within catchment area for a number of local schools.
Entrance Hallway
Spacious hallway leading two both ground floor reception rooms and low ground accommodation, comprising of traditional column radiator, ceiling light point and tiled flooring. Period coving and plaster arch.
Lounge
Spacious lounge boasting integrated stove, sash windows to the rear elevation complete with fitted shutters. Coving, ceiling rose and ceiling light point. Central heating radiator and wooden flooring.
Dining Room
Benefitting from an additional reception room, making for an excelling formal dining room or study. With sash windows to the front elevation and fitted shutters, traditional feature fireplace and central heating radiator. Further boasting period features including coving and ceiling rose.
Kitchen Diner
Modern fitted kitchen with a range of base and wall units, partially tiled splashbacks and integrated appliances. Patio doors lead to the rear garden, along with windows to the side elevations and two skylights. Feature stove, ceiling spotlights and access to utility room.
Utility Room
Plumbing for utilities, housing boiler, ceiling light point and sky light. Rear door and window to the side elevation.
Guest WC
Low level flush WC, hand wash basin, central heating radiator and ceiling spotlight.
Reception Room
Boasting a further multi purpose reception room, with tiled flooring, central heating radiator, window and ceiling light point.
Master Bedroom
Spacious mater suite boasting fitted wardrobes, sash window to the front elevation and fitted shutters. Carpeted flooring, central heating radiator and ceiling light point.
Bedroom Two
A further double bedroom complete with built in wardrobes, window to the rear elevation and fitted shutters. Central heating radiator, ceiling light point and carpeted flooring.
Bathroom
Modern house bathroom, complete with freestanding bath and shower over. Low level flush WC, hand wash basin and traditional tower radiator. Partially tiled walls and ceiling spotlights.
Second Floor Landing
Landing benefitting from skylight, ceiling light point and storage within the eaves.
Bedroom Three
Double bedroom complete with skylight, ceiling light point, central heating radiator and carpeted flooring.
Bedroom Four
Benefitting from a fourth spacious bedroom, with window to the rear elevation, carpeted flooring, central heating radiator and ceiling light point.
Shower Room
Modern shower room with shower cubicle, low level flush WC and hand wash basin. Partially tiled walls, radiator and ceiling spotlight.
Garden
Large and private rear garden, benefitting from brick paved patio area, leading to garden predominantly laid to lawn.



































































