Clarence Road, Harborne, Birmingham, B17
Property Summary
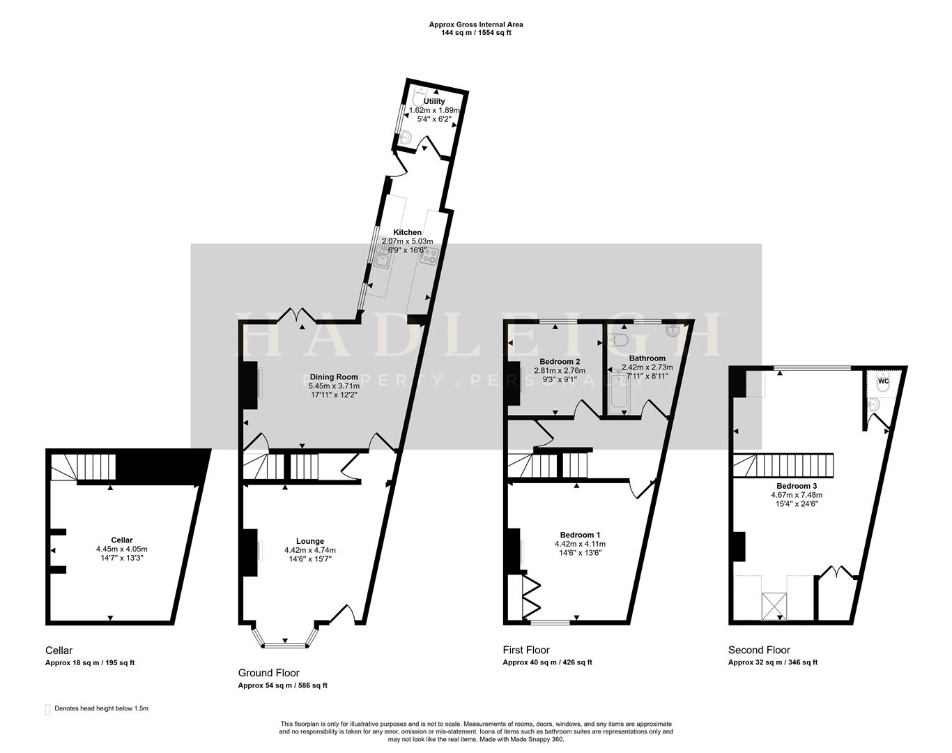
The first floor offer two double bedrooms and family bathroom. The second floor offers an additional third bedroom complete with ensuite WC. To the rear of the property is a large private garden and the property also boats a cellar.
Full Details
Location
CLARENCE ROAD is conveniently located parallel to the bustling Harborne High Street. A short walk to the high street provides excellent shopping, restaurant and café's including Marks & Spencer Food Hall and Waitrose. There is also easy access to Birmingham City Centre, The University of Birmingham and the Queen Elizabeth Medical Complex via regular public transport links nearby. The surrounding area offers excellent state and independent schools for boys and girls of all ages, including Harborne Junior & Infants School and The Blue Coat School. Recreational amenities include Edgbaston & Harborne Golf Clubs, Edgbaston Priory Lawn Tennis & Squash Club, sailing at Edgbaston Reservoir and Edgbaston Cricket.
Living Room
Having feature fireplace with horse shoe cast iron grate and hearth beneath, fitted book shelving, central heating radiator, cornice, ceiling light point with plaster rose, power point and double glazed bay window to the front with part plantation shutters and front door.
Inner Hall
With door down to the Cellar.
Cellar
Providing useful storage with light point.
Dining Room
Having as its focal point a log burning stove inset in feature fireplace with rustic brick chimney breast and hearth beneath, central heating radiator, power points, ceiling light point, staircase rising to the first floor Landing, twin French doors out to the Rear Gardens and archway through to:
Kitchen
Having Belfast style sink with side drainer, hot and cold mixer tap over, range of base and wall units with wood block working surfaces over, double door oven, four ring gas hob with extractor hood over, central heating radiator, quarry tiled floor, two ceiling light points, integrated fridge and freezer, dishwasher, double glazed window and door to the side.
Guest WC/ Utility Room
With Belfast sink, plumbing for the automatic washing machine, low level flush WC, space for tumble dryer, fitted shelving, wall mounted gas boiler and double glazed window to the side.
Bedroom One
Having original feature fireplace, built in wardrobes with concertina doors, power point, ceiling light point, central heating radiator and double glazed window to the front.
Bedroom Two
Having original fireplace, power point, ceiling light point, central heating radiator and double glazed window to the rear.
Bathroom
Comprising panelled bath with online mixer shower over and curtain, wash hand basin, WC, central heating radiator, ceiling light point, wall light point and opaque double glazed window to the rear.
On The Second Floor
A further staircase leads to the SECOND FLOOR giving access to:
Bedroom Three
Having central heating radiator, power points, two ceiling light points, under eaves storage cupboard, two Velux sky lights to the front and double glazed windows to the rear.
En-Suite WC
Housing a low level suite, wash hand basin and wall light point.
Outside
The property is set back beyond a neatly laid front garden with dwarf wall and blue brick stepped pathway.
Rear Garden
The rear garden comprises side courtyard with gate leading down to lawned Garden with side borders and mature trees.
General Information
We have been advised the following information, however we advise for you to confirm this with your legal representative as Hadleigh Estate Agents cannot be held accountable.
Tenure - Freehold
EPC - D
Council Tax Band - E























